GRAD/OPĆINA: Gornji Grad - Medveščak NASELJE: Centar
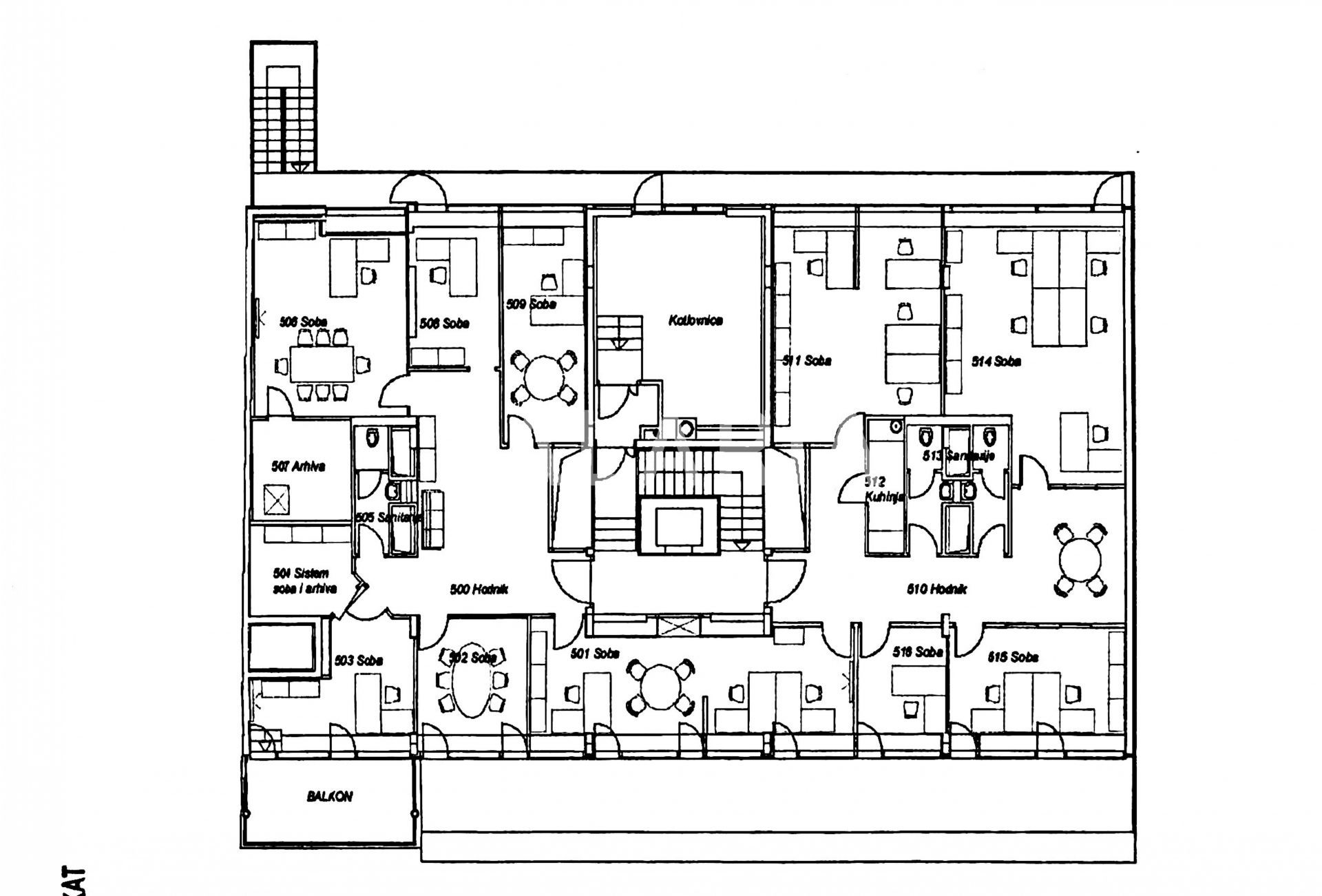
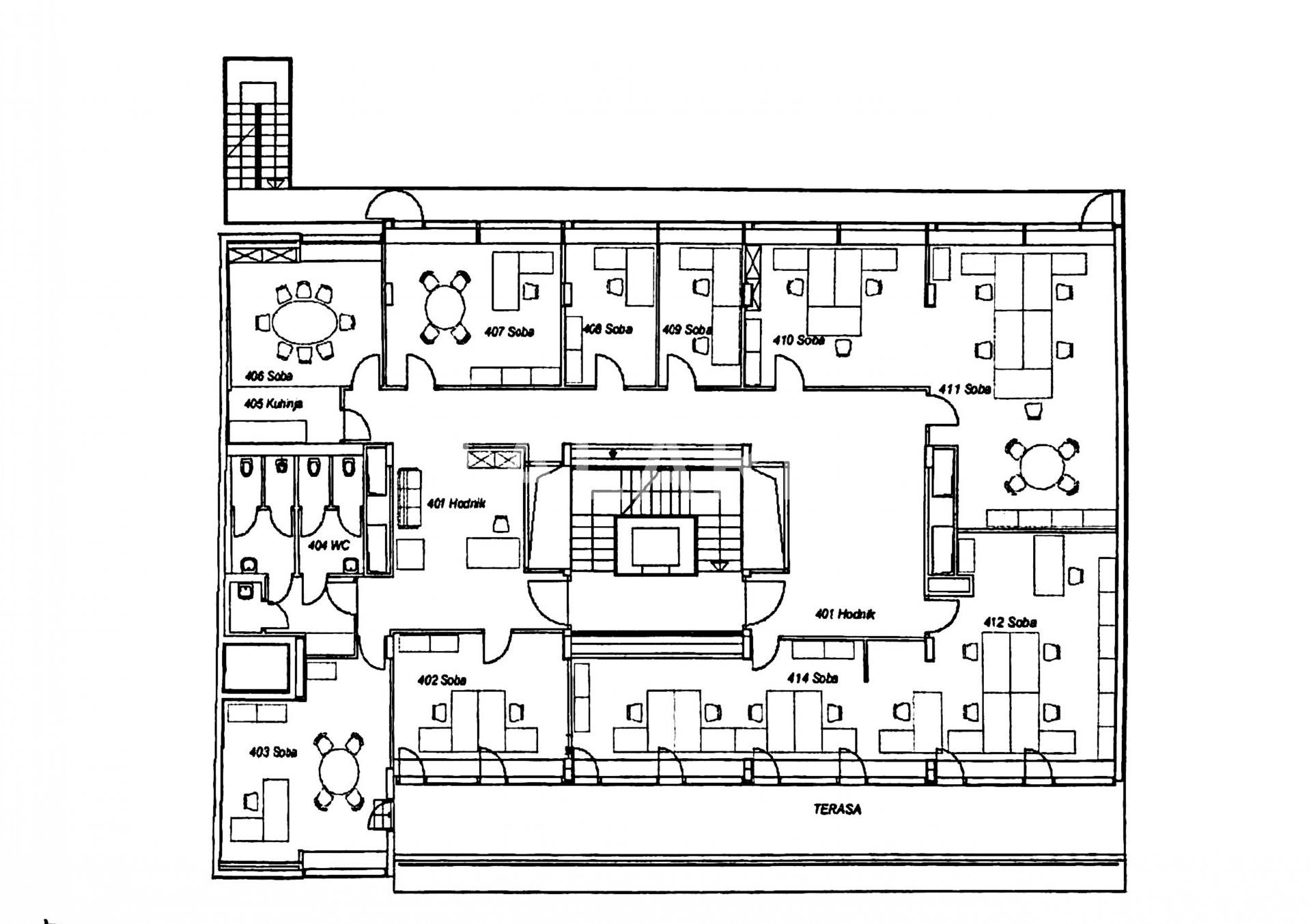
znajmljuje se poslovni prostor uredske namjene, ukupne površine 337 m2 na 5.katu poslovne i održavane zgrade, s recepcijom i liftom.
Sastoji se od ulaznog prostora, 10 uredskih prostorija, 2 sanitarna čvora, kuhinje s blagovaonicom te terase. Obzirom da se prostor prostire preko pune etaže ima izuzetno puno prozora orijentiranih ka istoku i zapadu. Upravo zbog puno staklenih stijena od zida do zida, prostor je izuzetno tlocrtno prilagodljiv potrebama budućeg zakupnika, a svi zidovi u prostoru su pregradni pa se može lako dobiti i open space koncept poslovanja. Sva ulaganja isključivi su trošak budućeg zakupca.
Strogi centar grada, neposredna blizina javnih sadržaja i javnog prijevoza. Postoji mogućnost dodatnog zakupa garažnih parkirnih mjesta.
AGENCIJSKA PROVIZIJA 1 MJESEČNA NAJAMNINA + PDV.











